Не нашли нужный товар? Позвоните или напишите нам и мы обязательно подберем для Вас решение.
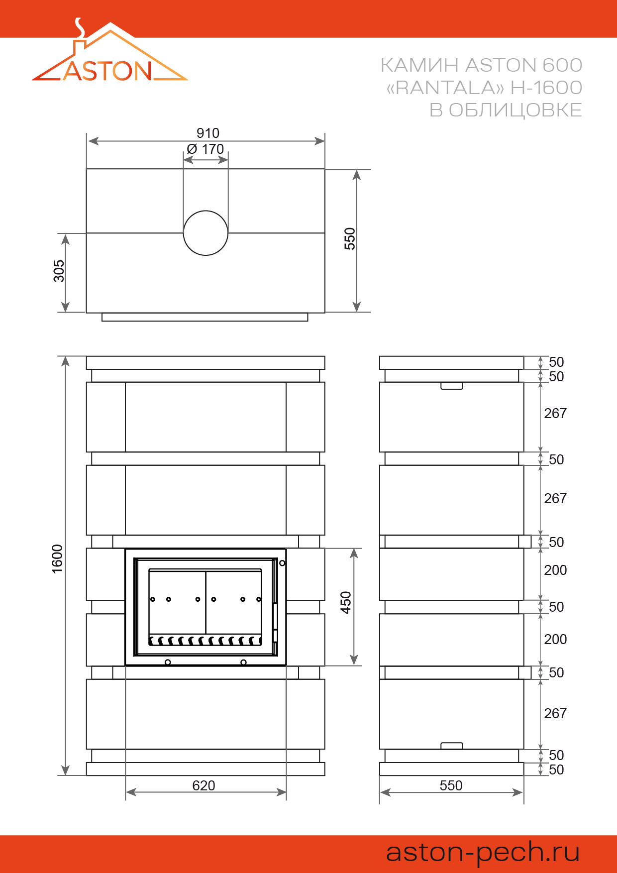
Договор заключается в момент оплаты Покупателем товара ТОЛЬКО в ОФЛАЙН-МАГАЗИНЕ. Делая предварительный заказ, Покупатель заверяет, что ознакомился и согласен с Политикой компании, она ему ясна и понятна.Камин АСТОН (ASTON) 600 «РАНТАЛА» Н-1600 Талькохлорит / Пироксенит
Конструкция и особенности печи
Представляем Вашему вниманию новинку - серия каминов РАНТАЛА
Облицовка сделана из натурального камня Талькохлорит или Пироксенит на выбор, который быстро прогревается, хорошо держит тепло и обладает свойством медленно и равномерно отдавать энергию в окружающее пространство. Облицовка толщиной 50мм долго остаётся тёплой даже после окончания работы каминной топки. Индивидуальный красивый рисунок камня создаёт неповторимый дизайн. Объёмная резная поверхность плит дополняет индивидуальность камня, делает неповторимым внешний вид именно Вашего камина.
Камин «РАНТАЛА» 600 Н-1600 рассчитан на прогрев помещений объёмом до 200 кубических метров
Камин комплектуется топкой серии АСТОН (ASTON) 600. Топочная камера изготовлена из особо прочной котловой стали 09Г2С. Внутренняя глубина топки 355 мм. Внутренняя. ширина топки 478 мм. Размер топочной дверки: 530х368 мм.
Максимальная теплоёмкость топки обеспечивается наличием вермикулитовой облицовки толщиной 30 мм внутри топочного пространства. Вермикулит хорошо набирает энергию во время горения дров и постепенно и равномерно отдаёт тепло после окончания горения. Также вермикулит защищает стальные стенки топки от прогорания и перегрева даже при сильном горении топлива
Большая панорамная дверь оснащена термостойким стеклом, позволяющим наблюдать за горением огня и контролировать наполнение топки
Облицовка собирается по месту, каменные плиты скрепляются между собой с помощью алюминиевых направляющих. Сборка и установка облицовки проходит без грязи и занимает не более часа времени. На верхней крышке размещено отверстие для дымохода.
Все элементы управления выведены на переднюю поверхность самой каминной топки, и наличие облицовки никак не сказывается на удобстве обслуживания топочной камеры.
Топка АСТОН (ASTON) 600 внутри облицовки размещается на подставке. Топка, подставка и облицовка отлично походят друг к другу и не требуют дополнительной подгонки. Свободное пространство между топкой и облицовкой предназначено для движения нагретого воздуха. Именно за счёт конвекции быстро нагревается пространство, что уже в первые минуты работы топки обеспечивает тепло в помещении.
Дымоход, огнезащита и комплектующие
Для печи необходим дымоход диаметром 150 мм. Его можно подобрать в разделе дымоходы. Рекомендуем обратить внимание, что первыми элементами от печи могут быть дымоходы черного цвета из стали 08ПС, которые можно подобрать в разделе дымоходы КПД
Не забудьте про огнезащиту стен.
Под печь необходимо предусмотреть негорючее основание. Рекомендуем использовать листы под печь черного цвета.
Также могут понадобиться важные мелочи.
Характеристики
|
Производитель
|
АСТОН (ASTON) Россия |
|
Высота, мм
|
1600 |
|
Глубина, мм
|
550 |
|
Ширина, мм
|
910 |
|
Диаметр дымохода, мм
|
150 |
|
Выход дымохода
|
сверху |
|
Вес, кг
|
564 |
|
Вид топки (способ открывания)
|
боковое открывание |
|
Мощность, кВт
|
10 |
|
Обьем помещения, м³
|
до 200 |
Отправляем продукцию по всей территории РФ.
Ознакомиться с условиями оплаты и получения товара Вы можете на странице «Доставка и оплата».
* Рассчитывается ориентировочная стоимость доставки от ПВЗ города отправления до ПВЗ города получения.
Конечная стоимость определяется после приема груза на терминале компании и зависит от точных габаритов сборки (длина*ширина*высота, вес), типа груза (наименование товара во вложении), вида отгрузки (отгрузка курьеру или в ПВЗ), хрупкости вложения, выбора услуги страхования груза, наличия обязательной обрешетки и дополнительной упаковки, согласно условий и требований к перевозке грузов конкретной ТК.
Вы можете воспользоваться услугами монтажа купленных у нас товаров. Для этого при оформлении заказа на сайте в поле «Нужен монтаж» нужно выбрать пункт «Да».
Также по вопросам монтажа Вы можете проконсультироваться по указанным на сайте телефонам или отправить запрос через любую из расположенных на сайте форм обратной связи.
- Можно доверять! Компания «КПД» работает с 2004 года.
- Работаем только с проверенными бригадами монтажников.
- Произведем расчет и установку любого оборудования из наших магазинов.
- Гарантируем качество выполненных работ.
- Примеры наших работ (смотреть).





