Не нашли нужный товар? Позвоните или напишите нам и мы обязательно подберем для Вас решение.
Договор заключается в момент оплаты Покупателем товара ТОЛЬКО в ОФЛАЙН-МАГАЗИНЕ. Делая предварительный заказ, Покупатель заверяет, что ознакомился и согласен с Политикой компании, она ему ясна и понятна.Котел Теплодар Куппер Практик 16 В
Особенности и преимущества
Линейка «Куппер ПРАКТИК» – надежные и доступные по цене твердотопливные отопительные котлы.
Куппер ПРАКТИК 16 В на 16 кВт идеально подходит для отопления помещений площадью до 160 м².
Котел «Куппер ПРАКТИК 16 В» работает на дровах и угле. Дополнительно котел можно укомплектовать блоком ТЭН на 6 кВт.
Особенности котла «Куппер ПРАКТИК 16 В»
Котел универсален и может работать как в закрытых, так и в открытых системах отопления с принудительной циркуляцией теплоносителя.
• Модификация "Практик-16 В" имеет полноценную варочную поверхность из чугуна.
• Защитно-декоративный кожух котла дополнительно обогревает помещение через конвекционные отверстия.
• Установка регулятора тяги позволит управлять интенсивностью горения топлива без присутствия человека.
• Котел для отопления оборудован вместительным зольником.
• В базовую комплектацию котла Куппер Практик входит: кочерга, шуровка, термометр, поворотный шибер.
ВНИМАНИЕ! Элементы дымохода, регулятор тяги, ТЭНы - не входят в комплект котла и приобретаются отдельно.
Дымоход, огнезащита и комплектующие
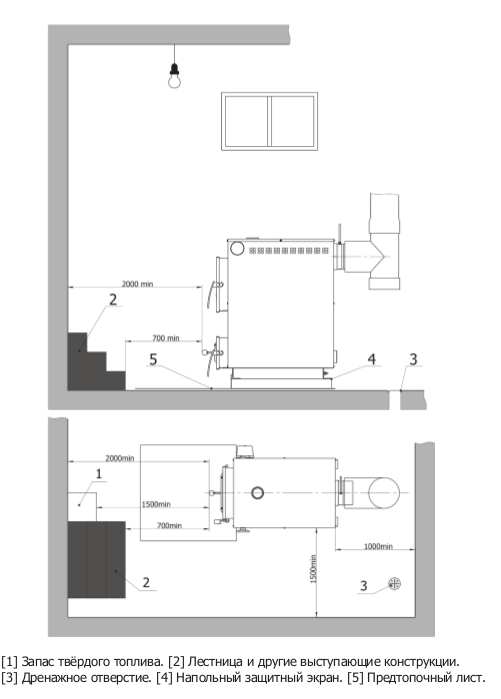
Для печи необходим дымоход диаметром 115 мм. Его можно подобрать в разделе "Дымоходы" или позвонить нам для точного расчета. Рекомендуем обратить внимание, что первыми элементами от печи могут быть дымоходы черного цвета из котловой стали. Их можно посмотреть в разделе "Черные дымоходы".
Не забудьте про огнезащиту стен. А также под печь необходимо предусмотреть негорючее основание. Материалы для огнезащиты Вы можете также посмотреть у нас в разделе "Огнезащита".
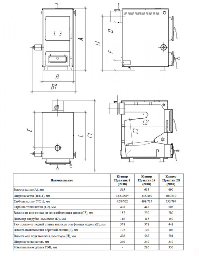
Характеристики
|
Производитель
|
Теплодар (Россия) |
|
Высота, мм
|
582 |
|
Глубина, мм
|
685 |
|
Ширина, мм
|
392 |
|
Диаметр дымохода, мм
|
115 |
|
Вес, кг
|
106 |
|
Материал печи (топки)
|
сталь |
|
Варочная плита
|
да |
|
Мощность, кВт
|
16 |
Отправляем продукцию по всей территории РФ.
Ознакомиться с условиями оплаты и получения товара Вы можете на странице «Доставка и оплата».
* Рассчитывается ориентировочная стоимость доставки от ПВЗ города отправления до ПВЗ города получения.
Конечная стоимость определяется после приема груза на терминале компании и зависит от точных габаритов сборки (длина*ширина*высота, вес), типа груза (наименование товара во вложении), вида отгрузки (отгрузка курьеру или в ПВЗ), хрупкости вложения, выбора услуги страхования груза, наличия обязательной обрешетки и дополнительной упаковки, согласно условий и требований к перевозке грузов конкретной ТК.
Вы можете воспользоваться услугами монтажа купленных у нас товаров. Для этого при оформлении заказа на сайте в поле «Нужен монтаж» нужно выбрать пункт «Да».
Также по вопросам монтажа Вы можете проконсультироваться по указанным на сайте телефонам или отправить запрос через любую из расположенных на сайте форм обратной связи.
- Можно доверять! Компания «КПД» работает с 2004 года.
- Работаем только с проверенными бригадами монтажников.
- Произведем расчет и установку любого оборудования из наших магазинов.
- Гарантируем качество выполненных работ.
- Примеры наших работ (смотреть).




